Can we design a Community Center building?
Started 4y. Edited 11mo.Started about 4 years ago. Last edit 12 months ago.
Construction
In Progress
More Information
1
Potentional Building
Published 4y.Published about 4 years ago.
We have an abandon building on our land. It’s an old shed for cows. It was fully overgrown and we cleaned it up.
You can see us doing that in the video below. Next we want to see the condition of the building what is resualble.
2
Inspecting the building
Published 4y. Edited 4y.Published about 4 years ago. Last edit about 4 years ago.
The building is in a bad condition. It burned down a few years ago but it’s also just build poorly. The walls are cracking apart and the roof collapsed. That said there seem to be a significant foundation underneath and the location is quite well chosen. It has a view over the land, close to the road and south facing. Even though we would probably use very little of the existing structure we like the idea of keeping the visual heritage alive. “renovate” what is already there. So we are going to make a 3D model to see what is possible






3
3D Model of the existing structure
Published 4y. Edited 3y.Published about 4 years ago. Last edit almost 4 years ago.
Thanks to the help of Kaegh we got a 3D model of the building. Below you can see some images and attached a 3D model in case you want to have a play with the design. Post your suggestions in Discord! Project Kamp #development
Download 3D model (sketchup): https://drive.google.com/drive/folders/1PEqoL904uDVJ83x6pQFO62shqtQ0aYHB?usp=sharing
Edit: Revit (.rtv)model also added thanks to Willem B!




4
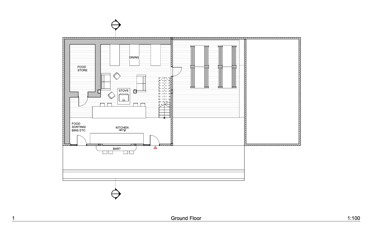
First Layout. Share yours!
Published 3y.Published almost 4 years ago.
We've started to make a rough plan of the community center. Mainly to see if all the utilities we need would fit in.
It's a first start to see what is possible. You can download the 3D model here if you want to make suggestions or give us some inspiration. Model: https://drive.google.com/drive/folders/1PEqoL904uDVJ83x6pQFO62shqtQ0aYHB
These are the requirements.
FUNCTION
This building will be the heart of our community. The goal of the building is to host our most complex infrastructure. It will be a shared space for +/- 40 people. A place to cook, eat, refresh, go to the toilet and work. (not sleep) In this way we can put all our complexity in here and keep houses simples.
DESIGN
The building is in poor condition and would probably need to be broken down and rebuild from the ground up. That said we like to visually keep the same shape on the exterior. Just for the fun to respect the previous building and less change for the neighbours :)
MATERIALS
We could use some input for this. We want to avoid using concrete but don't want (dare) to go to experimental for this building. We will go more experimental later) Mainly because it would contain expensive infrastructure and we are not sure yet how exotic materials behave in this climate. Ideally, we find a safe middle ground that is not to damaging..
UTILITIES
- Showers
- Toilets
- Kitchen
- Electricity (solar)
- Dinner area
- Chill area





5
Proposal from Blaze_ (member)
Published 3y.Published almost 4 years ago.
Here is a layout that member @@{:ABDEL}Blaze_ made. The plan proposes to keep separate structures.
This are the key point of thinking behind it.
1. Keep three different buildings. It would be easier, both construction and financial wise, to reconstruct the existing building as two different buildings. They are big enough and you can first develop/build one to see how it goes.
2. You should try and reconstruct the building, as this is environmentally always the better choice. If it is not possible, it makes sense to make a whole new project and not consider the old building.
3. The big building houses a kitchen with a storage and a big double height common room for eating and relaxing. It is possible to divide this room. A second entrance on the upper level brings you to the office/meeting room.
4. The small building houses utilities, similar to you proposal. It would however be interesting not to connect the building to the back wall, as this opens up the spaces and creates interesting paths around the nucleus.
5. A new, third building is a covered terrace, or maybe even a pergola, where you can have an outside kitchen and a big table for everybody.
Here at Project Kamp we like the idea of having different buildings. (Also nice detail on the waterline!) Makes it a bit more easy to start the renovation and it can create a fun place. But we are not sure if it would provide enough inside space for rainy winter days. What do you guys think?





6
Proposal from Fraser (member)
Published 3y.Published almost 4 years ago.
Here is a proposal made by our community member Fraser
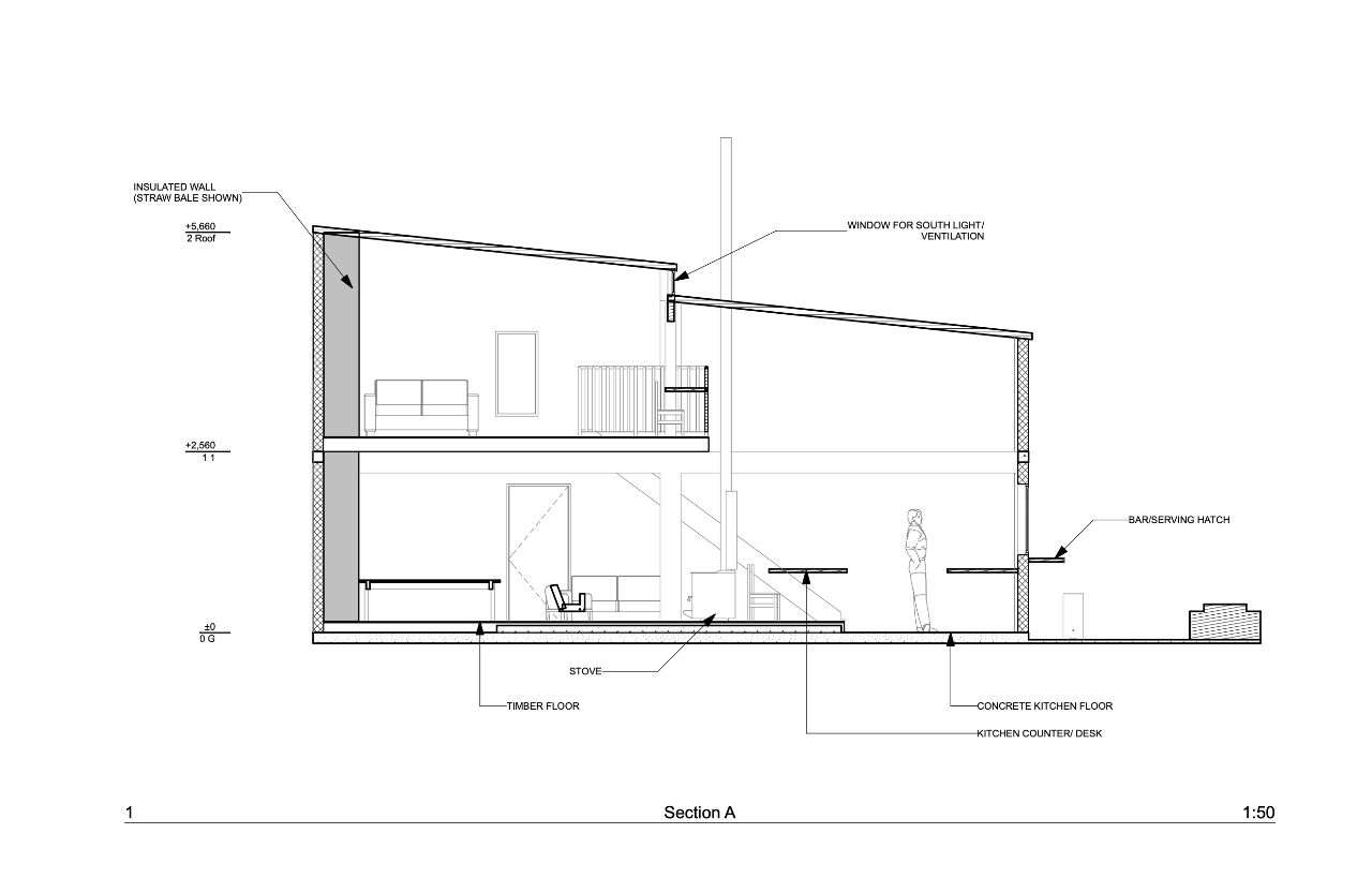
Principles of this proposal
1. Create a kitchen that can be the social heart of the building
2. Adjust roof and incorporate windows for south light and ventilation
3. Create a mezzanine for a chill zone/flexible space
4. Build timber floor over the concrete step up
5. Insulate the north side of the building (with straw bales)
6. Use a central wood-burning stove to heat the space (downstairs and upstairs)
We like the added window in the roof! And good to start thingking about heat distribution from a stove.
Drop a comment of you have any suggestions or feedback!






7
Proposal from Adrn (member)
Published 3y.Published almost 4 years ago.
Here another great proposal made by Adrn, some key points he intergrated:
1. He took inspiration from the proposals shared here before
2. The important point of this project is to think about long term development of the community on site with more and more people there. Planing a smaller building is easier to realize but in the long term harder to update. So I went with a bigger building, covering the existing ruins with a unique roof, reusing the existing concrete structures that seems to be quite good.
2. A nice feature of the ruin is the difference in topographic levels, that would be great to take advnatage from to create very nice social space that I called “amphitheatre”, a place to gather and share. I think this is what it’s all about !
What do you think ?






8
Official Topographic map (legalisation)
Published 3y. Edited 3y.Published over 3 years ago. Last edit over 3 years ago.
One of the main things we need to do for this building is legalize the existing structure. It was registered in some maps, but not the official papers (Caderneta). Apparently if the building is constructed before 1980 (when building regulations where introduced here) it is not required to have all official documents. Luckly with the approval of the local Municipality we managed to get in the official papers that the building is from before 1980, this means regulations should be more flexible.
In order to put this officially in the papers we had to make a topographic map that outlines the exact size. The papers are now updated and it seems all good.. Feels like it went a bit to easy so not sure if it's actually done. lets' see.
You can download the files here: https://drive.google.com/drive/u/0/folders/1GZitmBgN6oLkYL46GdHL-kALaDDttqOI
Next steps are to make a Project Plan and propose what we want to do with the building in the future. The exciting part. So time to start designing and drawing! :)

9
Building Option A - One Big Roof
Published 3y. Edited 3y.Published over 3 years ago. Last edit over 3 years ago.
We've been sketching and drawing plans for the Community Center. @adrn (from the submission above👆) has been helping out and we narrowed it down to two options. Here is the first:
Option A "optimized". A single Large insulated roof. Maximising buildable volume and allowing future indoor extensions with a possible first floor. The winter house is sheltered under the big roof and adds a second layer of insulation from the elements
PRO
- Maximizing buildable volume
- Allowing first floor extension
- Allowing indoor tribunes for conferences/cinema
- Better insulation
- More space/ceiling height
- More realistic to build ourselves
CON
- More materials, more construction
- More expensive, maybe not long term
- Non accessible roof
- Too big?
- Less integrated in Landscape
- Less iconic design
- ..
Click to enlarge the image and drop comments below




10
Building Option B - Green Roof & cabin
Published 3y.Published over 3 years ago.
Option B "intergrated". A single-storey summer warehouse with accessible green rooftop, intergrated to the landscape. The two-storey winter house would emerge from the green roof.
Pro
- Well integrated in the landscape
- Less expensive
- Less materials
- More iconic design
- Accessible rooftop, big outdoor space
Con
- Too small?
- Winter house in contact with outdoor
- Difficulty maintenance of the green roof in summer
- Difficult extension if necessary
- Difficult connection between winter cabin and green roof. Risk of leaks




11
One big roof design in detail
Published 3y.Published about 3 years ago.
We’re going for option A, one big roof. Mainly to keep it simple and have a place for integrating solar panels. @adrn made a nice summary video to give you an overview of where we are currently at. He explains the zoning in the land, current state of the building and a tour on the design. Our next steps are to find out what is locally allowed and what permits are needed. Let us know if you have any feedback on the design.
12
Visuals of the updated design!
Published 2y. Edited 2y.Published over 2 years ago. Last edit over 2 years ago.
After a some meetings with the municipality and making various iterations we came up with this design. Have a look at the renders and drawings below. Made by @adrn 🎉
A few key updates
1. We decided to not rebuild the existing structure. Legally very complex + not a good long term base for such a costly/large project.
2. To not surpass the max height limit we have 1 bottom floor + half first floor.
3. We will make sure to make the building look local and blend in with the rest of regional architecture (not to funky)
4. We are happy with the floorplans and space arrangement.
5. Materials still need to be decided. (looks steps below)
5. We need to look deeper into what utilities (looks steps below)
These are the key changes. But you can see more about it in update video #98.






13
Question: What material to use?
Published 2y.Published over 2 years ago.
In order to move forward with our drawing we need to decide on what material to use. We see 3 options.
1. Granite. This is very common the find around here, legally easy to intergrate and visually blends in well. However it's less common nowadays the build with it so it can be hard to find the right stones + builders for the job and it would be more costly. It has great properties to keep the place cool in summer but tends to be more chilly in winter. (Locally many people dont insulate it )
2. Strawbale & Clay A mixture of clay is what they used to build houses with (taipa), but adding strawbales seems unusual here. We dont have much experience with the material or local references on how it would behave in this hot/wet climate.
3. Hempcrete. A newer upcoming material. Seems promising, never worked with it or have a reference of a building. Could be fun to try but also risky. Also legally no idea how much complexity it brings.
Let us know if you have suggestions or experiences!




14
Question: What utilities to install?
Published 2y.Published over 2 years ago.
This is a big topic. What kind of utilities should we install, and how much.
Knowing that the building should be designed to host 50 people.
What we need:
- Hot water
- Cold water
- Cooking Gas
- Sewage
- Electricity
- Heating in winter
- Maybe cooling in summer
Few open questions here
⚡️ Electricity: Solar seems a good option. But how much KW and battery do we need?
🚿 Hot water: How do we heat our water? Electricity, burning wood, solar heater or combination of them all?
💦 Cold water: We have the option for a well or borehole. How much water storage do we need?
💩 Sewage: Legally we probably need a sceptic tank. Do we also want dry compost toilets or vermicomposting? Do we separate our pee? And what do we do with the grey water?
🔥 Heating: Woodstove seems nice in winter, what type is most effective? And is biogas for cooking realistic?
❄️ Cooling: Granite might cool enough. But wat our more natural ways to cool?
Lots of question. Let us know your thoughts!

15
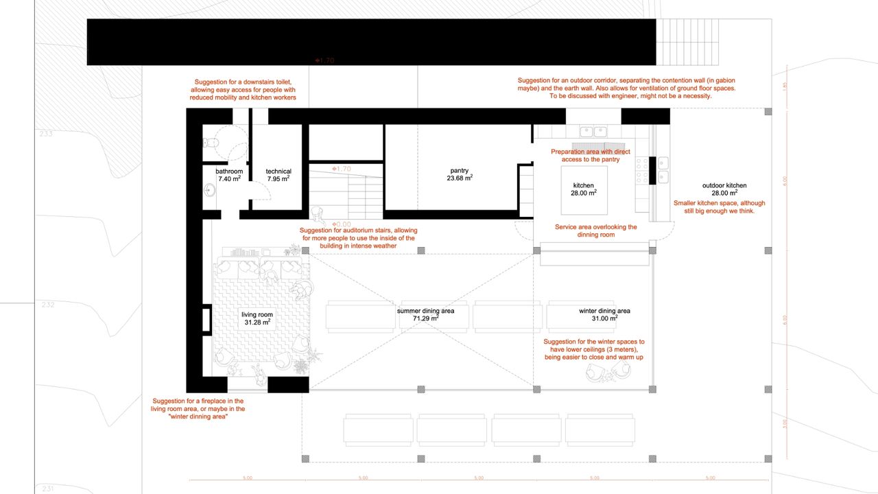
Hired an architect to speed up legalisation
Published 1y.Published over 1 year ago.
It’s been a while since the recent update. Throughout time we worked with a few (volunteer) architects. Some local some remote. We’ve been learning a lot about the process. However we never managed to fully bring it to the next step. I guess it’s more fun to help with design, but less interesting to help with local regulations. So we hired an architect firm to make sure it gets really pushed forward. We reached out o a few but ended up with BAAU (https://www.baau.pt/)
By now we had a few visits and talks and attached you can find a moodpboard for the style and the first draft of the new building.
We made a few changes.
- Focus on Rammed earth as a material as it seems more straightforward to legalise locally since it has been around for centuries (taipa)
- Detach to building from the back wall. To void leaks and humidity coming in the winter
- Opening on the roof to create outdoor space on the top floor
- Main entrance on the backside to access top and bottom floor
- Detached (earth cooled) pantry for the kitchen
Another thing we have to look into soon (for legal reasons) is the sewage system. We’ve started another topic for that. Let us know if you have ideas on that: https://community.projectkamp.com/research/find-good-methods-for-an-off-grid-ecological-sewage-system
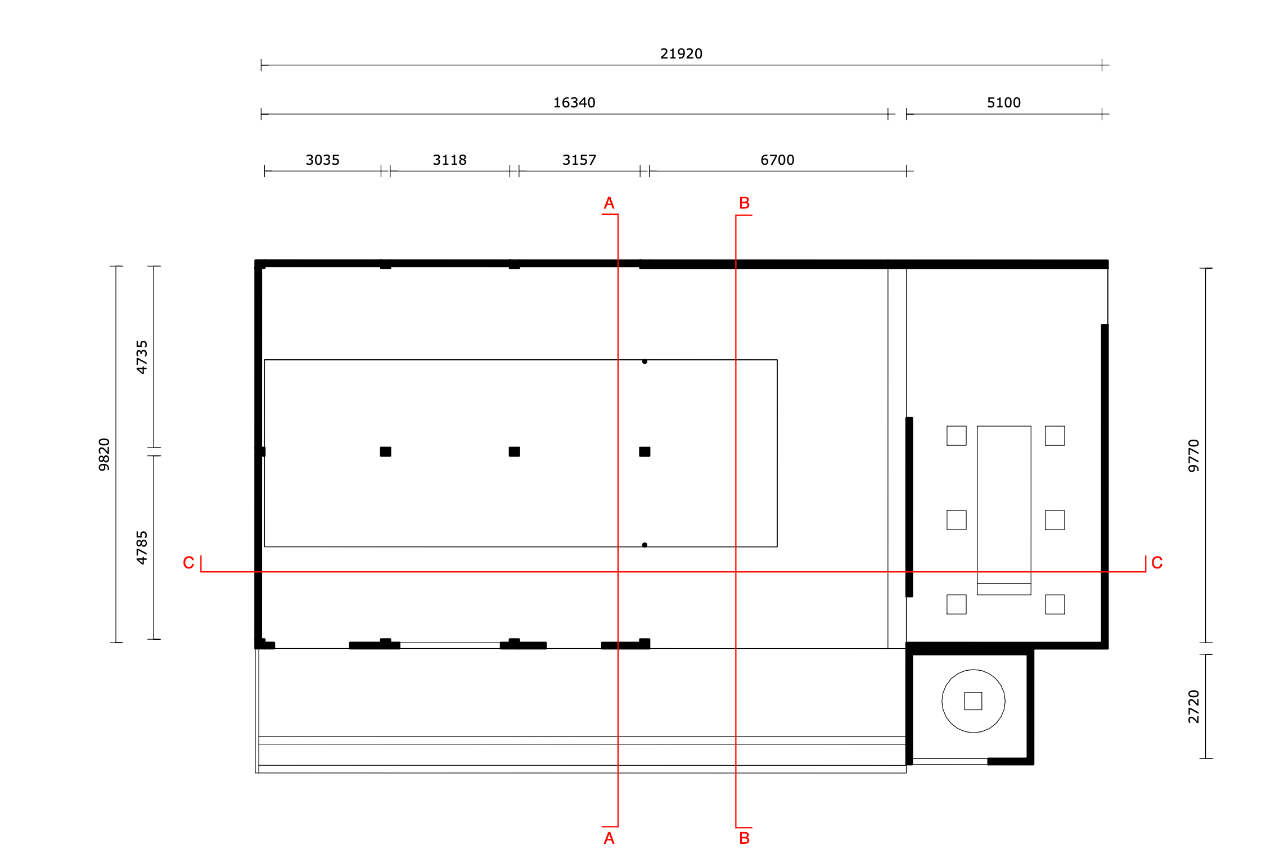
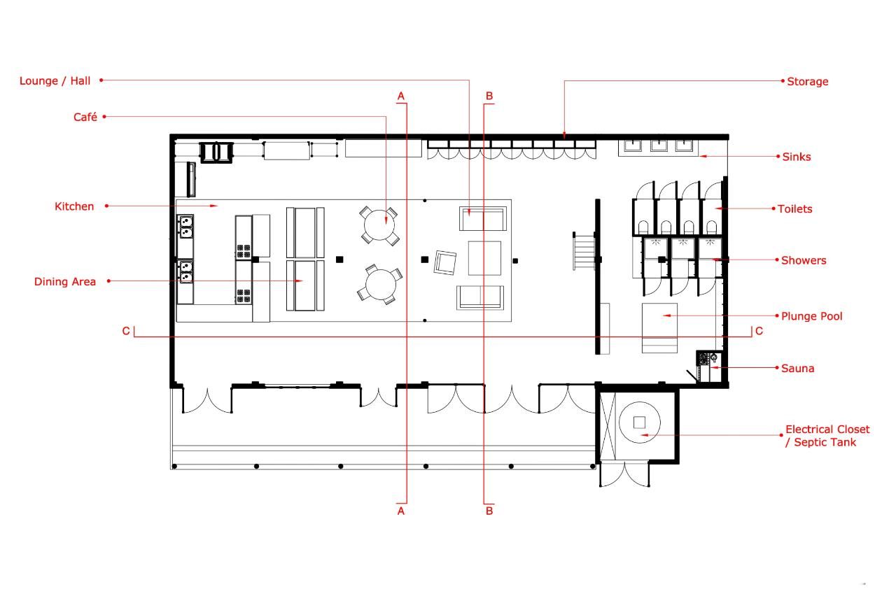
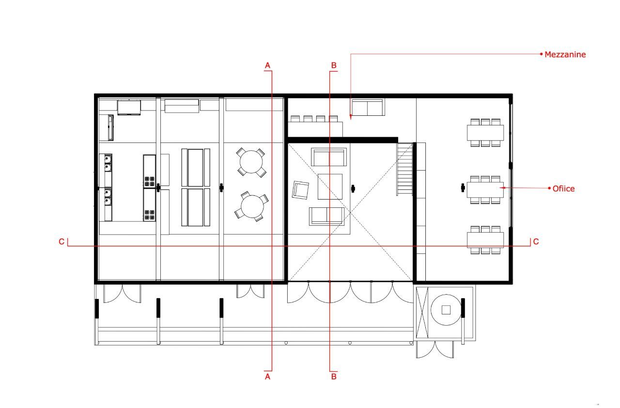
Below a few images but you can see more in the pdf. Have a look at the plans below






